Click vào để biết vị trí, tiện ích, quy hoạch... của dự án
Bạn muốn đặt Hotline ở đây
Quy mô dự án iD Town Đồng Nai
Phối cảnh dự án iD Town
Tổng diện tích | 25.274,4m2 |
Diện tích xây dựng chung cư | 8.153,72m2 |
Tổng diện tích sàn xây dựng | 47.064,72m2 |
Mật độ xây dựng | 35% |
Quy mô xây dựng | 4 block cao 7 tầng |
Số lượng sản phẩm | 628 căn hộ |
Quy mô dự án iD Town
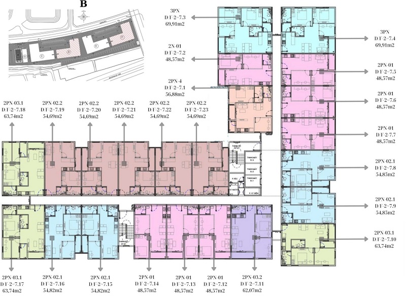
Mặt bằng căn hộ điển hình
Sản phẩm dự án iD Town Đồng Nai
Căn hộ 2 phòng ngủ
Diện tích: 48,48-63,74m2
Thiết kế căn hộ 2 phòng ngủ
Căn hộ 3 phòng ngủ
Diện tích: 69,91m2
Thiết kế căn hộ 3 phòng ngủ
Thiết kế căn hộ tại dự án
Tiện ích dự án iD Town Đồng Nai
- Hồ bơi công nghệ điện phân muối
- Quảng trường trung tâm & khu sinh hoạt cộng đồng
- Sân chơi trẻ em ngoài trời
- Khu thể dục thể thao đa năng
- Khu vườn xanh & đường dạo nội khu
- Bãi đậu xe tách biệt và hệ thống an ninh
Phối cảnh tiện ích tại dự án
Pháp lý dự án iD Town Đồng Nai
Dự án iD Town thuộc khu đô thị iD Junction, tên pháp lý là dự án khu dân cư theo quy hoạch tại thị trấn Long Thành, huyện Long Thành.
Ngày 12/12/2019, UBND tỉnh Đồng Nai ban hành Quyết định số 4092/QĐ-UBND về việc phê duyệt quy hoạch chi tiết tỷ lệ 1/500.
Ngày 24/4/2025, UBND tỉnh Đồng Nai ban hành Quyết định số 1320/QĐ-UBND về việc giao đất đợt 3 để sử dụng vào mục đích đầu tư xây dựng các hạng mục công trình nhà ở xã hội, cây xanh mặt nước, thể dục thể thao và giao thông với diện tích 38.305,1m2.
Ngày 15/5/2025, chủ đầu tư được cấp giấy phép xây dựng số 17/GPXD.
Tiến độ dự án iD Town Đồng Nai
Dự án khởi công ngày 19/5/2025.
Cập nhật tháng 10/2025, dự án đang thi công phần thân.
Giá bán tham khảo: 23 triệu đồng/m2
Tiến độ dự án cập nhật tháng 10/2025
Thông tin chủ đầu tư dự án iD Town Đồng Nai
Công ty Cổ phần Long Thành Riverside hoạt động từ năm 2011, địa chỉ trụ sở là tổ 18, khu Cầu Xéo, xã Long Thành, tỉnh Đồng Nai. Doanh nghiệp hoạt động chính trong lĩnh vực kinh doanh bất động sản.
Thông tin nhanh dự án iD Town Đồng Nai
Dự án: iD Town | Tổng diện tích: 25.274,4m2 |
Vị trí: Khu đô thị iD Junction, đường Phạm Văn Đồng, xã Long Thành, tỉnh Đồng Nai | Tổng vốn đầu tư: |
Loại hình: Nhà ở xã hội | Năm khởi công: 19/5/2025 |
Chủ đầu tư: Công ty Cổ phần Long Thành Riverside | Năm hoàn thành: |

theo Thanhnienviet


